ALTUS 130
Jerarquía, diseño y amplitud
CARACTERÍSTICAS
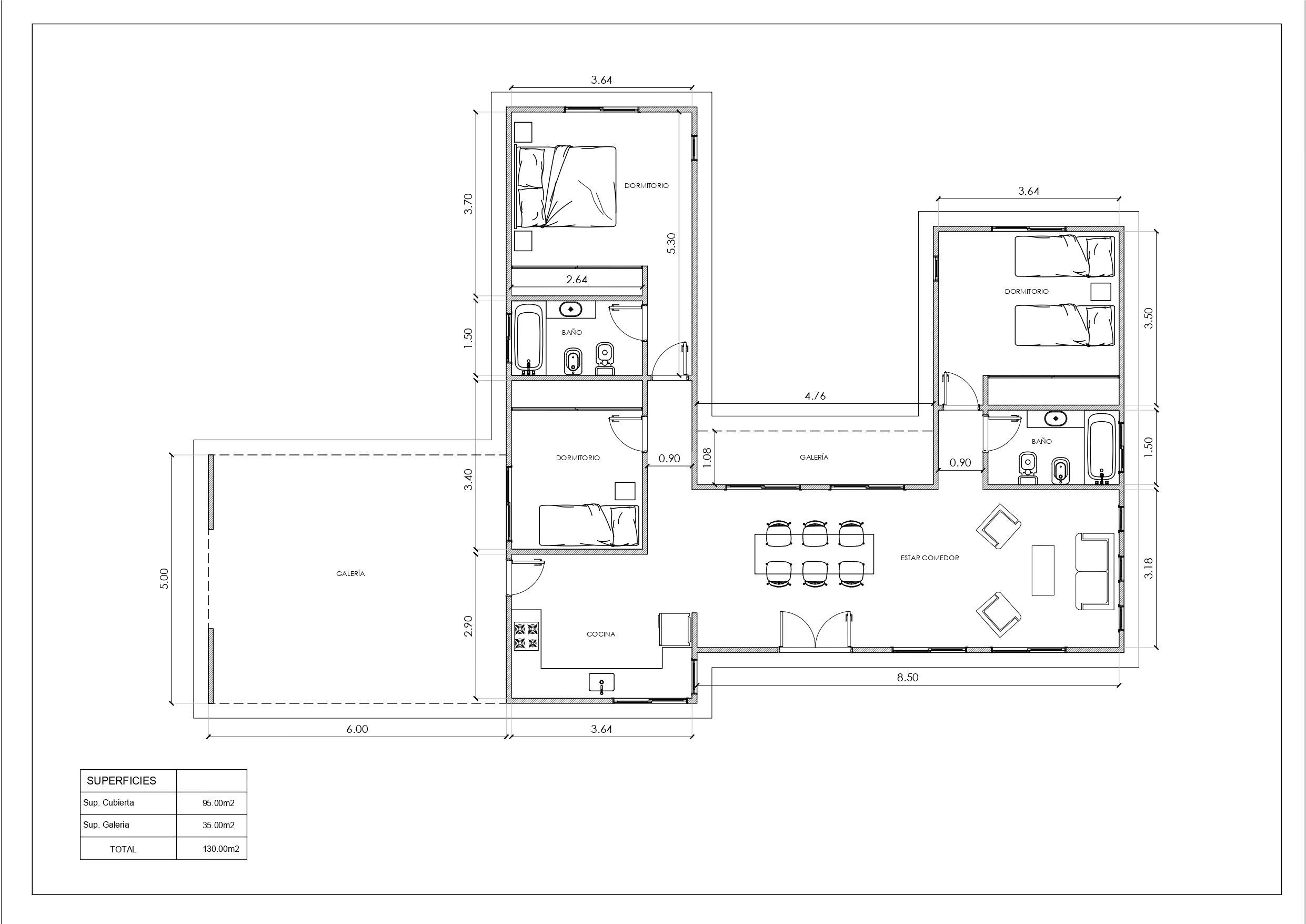
130 M2
3
2
Jerarquía, diseño y amplitud
ALTUS 130 es la tipología más completa de la línea. Espacios definidos, doble galería y una organización pensada para quienes buscan algo más.
Características- 95 m² cubiertos
- 35 m² de galerías
- 1 master suite
- 2 dormitorios
- 2 baños completos (1 en suite)
- Sala y comedor integrados
- Cocina separada
- 2 galerías
Ideal paraQuienes priorizan confort, diseño y funcionalidad premium.
Diferencial✔️ Cocina independiente
✔️ Doble galería
✔️ Planta jerarquizada
Solicitá presupuesto de esta tipología
Personalizá el modelo según tus necesidades
Agendá una reunión con nuestro equipo
¿Listo para construir tu proyecto?
Acompañamos tu proyecto desde el diseño hasta la entrega llave en mano, con la más alta calidad y compromiso total.
¿Listo para construir tu proyecto?
Acompañamos tu proyecto desde el diseño hasta la entrega llave en mano, con la más alta calidad y compromiso total.





