AURA 42
lo esencial bien pensado
CARACTERÍSTICAS
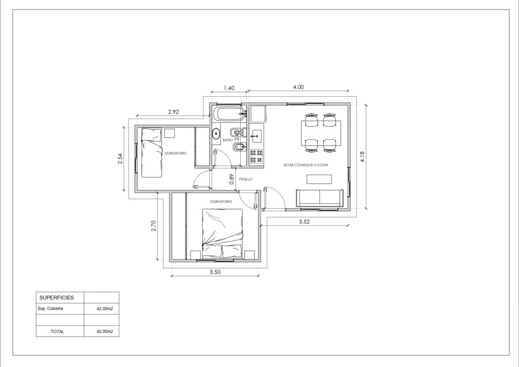
42 M2
2
1
Lo esencial, bien pensado
Minimalista, funcional y luminosa. AURA 42 es la puerta de entrada a la vivienda propia: una casa compacta que optimiza cada metro sin resignar confort.
Características- 42 m² cubiertos
- 2 dormitorios
- 1 baño completo
- Cocina, comedor y living integrados
Ideal para
Primer hogar, parejas jóvenes o inversión para renta.
Lo que la hace especial✔️ Distribución inteligente
✔️ Bajo costo de mantenimiento
✔️ Espacios cálidos y eficientes
Una casa esencial, con alma.
Solicitá presupuesto de esta tipología
Personalizá el modelo según tus necesidades
Agendá una reunión con nuestro equipo
¿Listo para construir tu proyecto?
Acompañamos tu proyecto desde el diseño hasta la entrega llave en mano, con la más alta calidad y compromiso total.
¿Listo para construir tu proyecto?
Acompañamos tu proyecto desde el diseño hasta la entrega llave en mano, con la más alta calidad y compromiso total.





