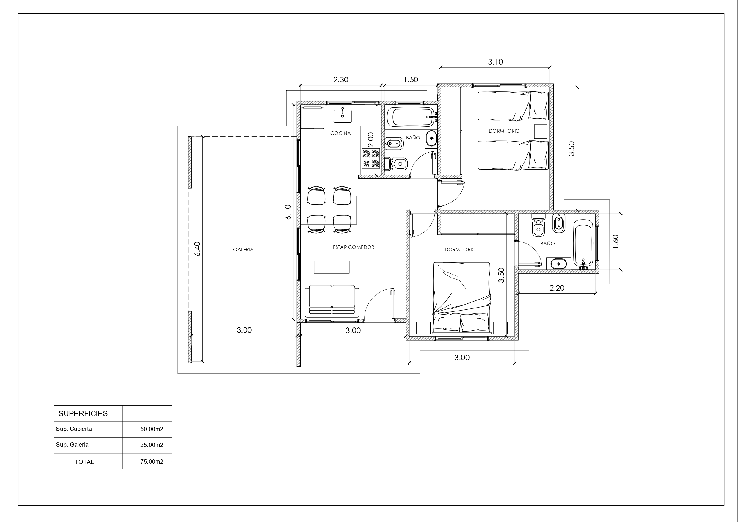
HORIZONTE 75
Más espacio, más libertad
CARACTERÍSTICAS
75 M2
2
2
Más espacio más libertad
Diseñada para quienes buscan comodidad sin ir a una gran superficie. HORIZONTE 75 combina amplitud interior con una galería generosa.
Características- 50 m² cubiertos
- 25 m² de galería
- 2 dormitorios
- 2 baños completos
- Sala, comedor y cocina integrados
- Galería
Ideal para
Familias que valoran privacidad y confort.
Lo que la hace especial✔️ 2 balos completos
✔️ Amplio espacio exterior
✔️ Sensación de casa más grande
Solicitá presupuesto de esta tipología
Personalizá el modelo según tus necesidades
Agendá una reunión con nuestro equipo
¿Listo para construir tu proyecto?
Acompañamos tu proyecto desde el diseño hasta la entrega llave en mano, con la más alta calidad y compromiso total.
¿Listo para construir tu proyecto?
Acompañamos tu proyecto desde el diseño hasta la entrega llave en mano, con la más alta calidad y compromiso total.





