OASIS 120
Vivir sin apuros
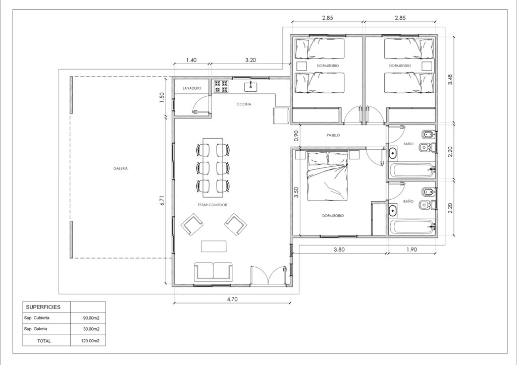
CARACTERÍSTICAS
120 M2
3
2
Vivir sin apuros
Con más superficie y espacios complementarios, OASIS 120 ofrece una experiencia residencial completa, pensada para la vida familiar moderna.
Características- 90 m² cubiertos
- 30 m² de galería
- 1 master suite
- 2 dormitorios
- 2 baños completos (1 en suite)
- Sala, comedor y cocina integrados
- Cuarto de lavado
- Galería
Ideal paraFamilias consolidadas que buscan comodidad real.
Beneficios✔️ Lavadero independiente
✔️ Ambientes amplios
✔️ Circulaciones cómodas
Solicitá presupuesto de esta tipología
Personalizá el modelo según tus necesidades
Agendá una reunión con nuestro equipo
¿Listo para construir tu proyecto?
Acompañamos tu proyecto desde el diseño hasta la entrega llave en mano, con la más alta calidad y compromiso total.
¿Listo para construir tu proyecto?
Acompañamos tu proyecto desde el diseño hasta la entrega llave en mano, con la más alta calidad y compromiso total.





